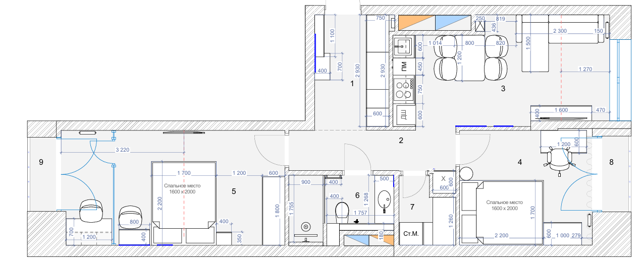
ЖК Западный порт
Площадь 68 м²
Проект в современном стиле. Рассчитан на семью из трех человек.
Оставьте заявку по форме ниже,
и я свяжусь с вами для обсуждения вашего проекта
Ваше сообщение успешно отправлено!
Оставить заявку